Ref # 2286610

Commercial Property for sale in Mossel Bay

Property Type
Mixed Use
Bathrooms
4
Land Size
2,160m²
Rates & Taxes
±R8,892

Sole and Exclusive Mandate

Zoning: Business Zone II (BZII)

Welcome to an exceptional investment opportunity in the thriving hub of Heiderand, Mossel Bay. This property enjoys prime positioning on Louis Fourie Drive, offering unparalleled accessibility to nearby malls, schools, and other essential amenities. The area is ideally suited for logistics, offices, distribution, and retail operations.

The property is zoned under Business Zone II (BZII)

Consent uses including a freestanding base telecommunication station, liquor store, places of assembly, instruction, leisure, and worship, renewable energy structures, restaurants, and service stations.

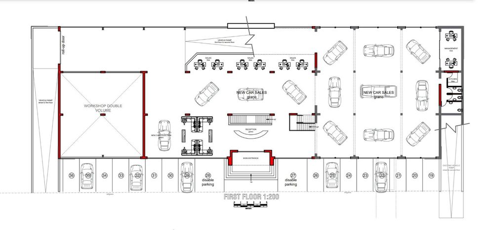
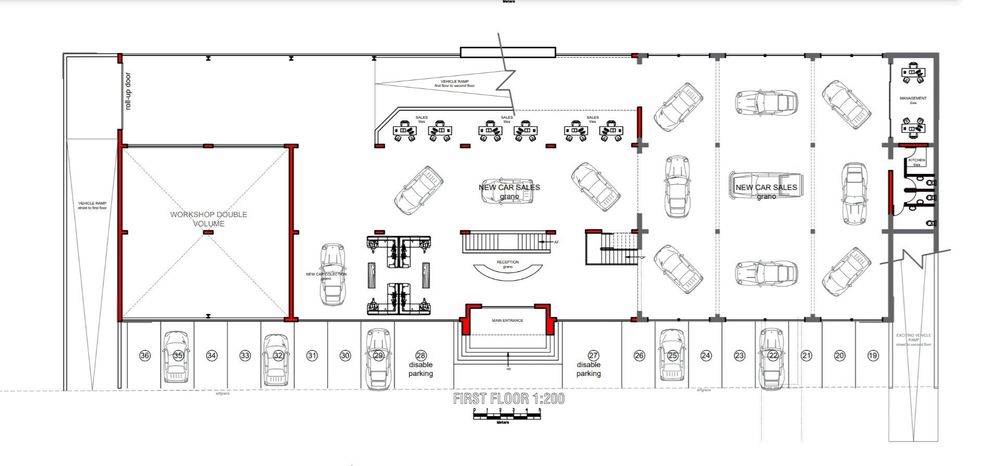
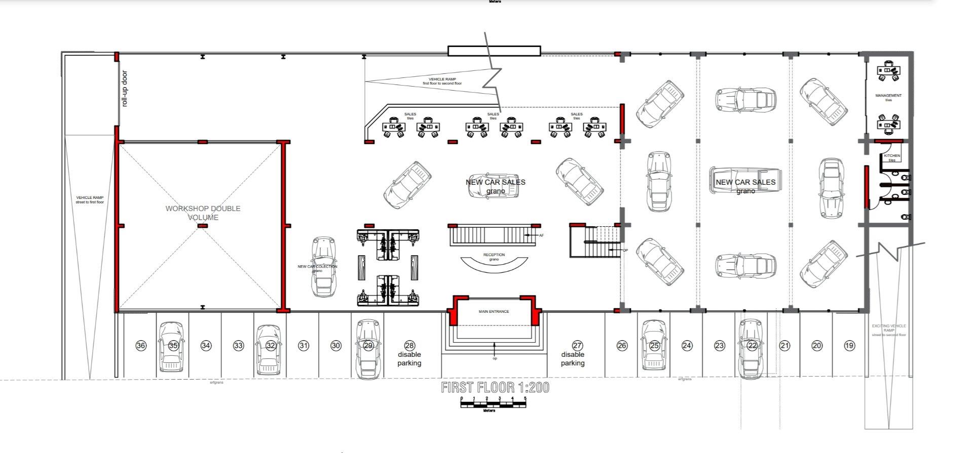
The existing building is a robust three-story structure designed with ample parking and a ramp, making it particularly advantageous for the car industry. Its strategic location provides uncompromising highway exposure, perfect for high-impact signage and advertising.

Currently, the property is in the process of being consolidated and rezoned from three separate 720m2 plots into one cohesive unit, further enhancing its investment potential.

Don't miss out on this excellent opportunity to invest in a well-established and strategically located premises in Mossel Bay. VAT is payable on this property.

For more information or to schedule a viewing, please contact us today.

Ronel de Beer photo
Ronel de Beer
082 338 1075
Samantha de Beer photo
Samantha de Beer
071 688 6267
Make an enquiry
Interested in this property? Please fill in your details below, and we will contact you as soon as possible.
By clicking on "submit" you agree to our privacy policy.